Gerald Street mixed use development transport assessment

Objective

Conduct a transport assessment

Client

JD Homes Limited

Location

Lincoln, Canterbury

Deliverable

Report

Timeframe

Sept 2025

Project Status

Complete

Background

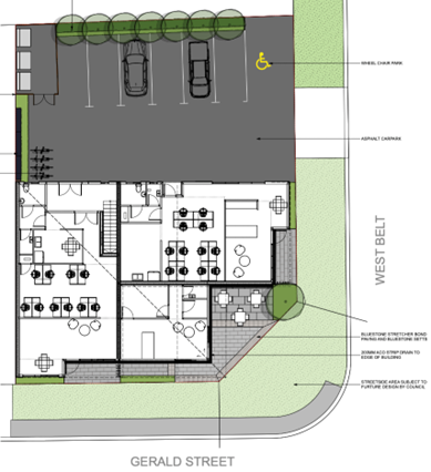
A mixed-use development is proposed at 28 Gerald Street, featuring a real estate office and a fish and chip shop at ground level, with two levels of residential apartments above. The site will include a single vehicle crossing on West Belt Road, providing parking for up to six vehicles, including one mobility-accessible space, along with four bicycle stands to support alternative transport modes.

ViaStrada prepared a transport assessment to evaluate the proposal against the Partially Operative Selwyn District Plan (POSDP), specifically under TRAN-R6, which addresses parking, manoeuvring, and loading areas to determine whether the development meets the district’s standards for safe and efficient vehicle access.

To support this assessment, vehicle tracking path drawings were prepared, illustrating the anticipated movements of vehicles entering and exiting the site via West Belt Road, as well as internal manoeuvring within the carpark. The drawings demonstrate compliance with design standards and confirm that the proposed layout accommodates typical vehicle movements safely and efficiently. Particular challenges included non-compliance with carpark landscaping and how the carparks, bicycle parks, and bin storage would interact. ViaStrada provided input to minor redesign and information to inform the council’s discretion over non-compliances.