Projects
      Filter
      
    
   
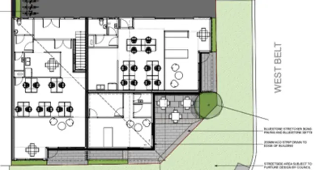
  Gerald Street mixed use development transport assessment
                      How does a mixed-use development meet the transport requirements of the district plan, while supporting high-density living on a compact site in a
                  …
                  
  
    Read More
    
  
 
  VKT impacts of road space reallocation
                      ViaStrada was commissioned by NZTA to investigate the measured network vehicle-kilometres-travelled (VKT) impacts of permanent road space reallocation
                  …
                  
  
    Read More
    
  
 
  Queenstown area school campus and road safety audits
                      We were proud to support the Lightfoot Initiative in their mission to reimagine transport for healthier people, communities and the planet. ViaStrada
                  …
                  
  
    Read More
    
  
 
  Buchanans Road caravan park
                      How do we ensure safe access for a proposed caravan park?
                  
  
    Read More
    
  
 
  Dunedin Peer Reviews
                      ViaStrada supported Dunedin City Council with expert design reviews for three key transport projects. Our advice focused on improving safety,
                  …
                  
  
    Read More
    
  
 
  Driveway access on Christchurch to Akaroa highway
                      ViaStrada was engaged to help reconfirm driveway access to SH75 for a proposed subdivision along the Christchurch–Akaroa route. Through a detailed
                  …
                  
  
    Read More
    
  
 
  Vogel Street improvements
                      Vogel Street is set for a transformation into a safe, welcoming shared street for people walking, cycling, and using micromobility. As part of Dunedin
                  …
                  
  
    Read More
    
  
 
  Path Speed Management Research
                      New Zealand Transport Agency Waka Kotahi commissioned ViaStrada to study how well horizontal and vertical design features manage path user speed,
                  …
                  
  
    Read More
    
  
 
  Karori Connections (Botanic Gardens) parking options safety review
                      ViaStrada conducted an independent safety assessment of several proposed options for adding car parking back in along a 400-metre uphill section of
                  …
                  
  
    Read More
    
  
 
  Proposed pylon sign Transport Assessment
                      We assisted the client with a Resource Consent Application for a pylon sign in Blenheim.
                  
  
    Read More
    
  
 
  Traffic Safety Assessment for Subdivision - McLaughlins Road
                      ViaStrada was engaged to provide a traffic safety assessment in response to a Request for Information from the Selwyn District Council regarding a
                  …
                  
  
    Read More
    
  
 
  Shands Road Sawmill Integrated Transport Assessment
                      ViaStrada completed a comprehensive Integrated Transport Assessment (ITA) to support the development of a proposed new biofuel pellet plant
                  …
                  
  
    Read More
    
  
 
  Wellington bicycle and scooter cordon count
                      How can monitoring the number, gender, and road position of people entering Wellington’s central city by bike or scooter help shape the future of
                  …
                  
  
    Read More
    
  
 
  Algona Road Shared Path Feasibility Study
                      Commissioned by Kingborough Council, ViaStrada delivered a Shared Path Feasibility Study for a proposed 3.2 km path linking Blackmans Bay and
                  …
                  
  
    Read More
    
  
 
  University guest lectures
                      For many years, Glen Koorey has regularly delivered guest lectures on traffic engineering, road safety, and sustainable transport topics to various
                  …
                  
  
    Read More
    
  
 
  Haven Halifax business case review
                      The existing intersection of Haven Road and Halifax Street is currently controlled with a small diameter multi-lane roundabout. The adjacent land use
                  …
                  
  
    Read More
    
  
 
  Greendale Road subdivision Safe System Audit
                      Through their development consultant DLS, Cressy Properties Limited engaged ViaStrada to conduct a preliminary design stage Safe System Audit for a
                  …
                  
  
    Read More
    
  
 
  Lyttelton Port safety reviews and design concepts
                      The Lyttelton Port needed specific safety expertise to undertake assessments of their main entry gate and adjacent road networks. Using their design
                  …
                  
  
    Read More
    
  
 
  42 Roberts Road subdivision detailed design safety audit
                      ViaStrada was commissioned by Mike Greer Homes to conduct a Road Safety Audit for a proposed new subdivision off Roberts Road in Christchurch.
                  
  
    Read More
    
  
 
  Thornton Road Realignment audits, Whakatāne
                      ViaStrada conducted the detailed design safety and post-construction audits of the Thornton Road re-alignment project. This was a short section of
                  …
                  
  
    Read More
    
  
 
  Mode shift impacts on safety
                      ViaStrada was commissioned by NZTA to undertake research on the overall safety impacts of mode shift away from private motorised vehicles to whole
                  …
                  
  
    Read More
    
  
 
  